结构图中djj01,600是什么意思
来源:网络收集 点击: 时间:2024-08-16【导读】:
意思是01号独立基础(阶梯式的),高度为600mm。
在结构图中,DJ表示普通独立基础,BJ表示杯形独立基础,j表示独立基础截面形状为阶梯形,p表示独立基础截面形状为坡形,01、02、03、04表示基础序号。
因此DJj01表示1号普通独立基础,截面形状为阶梯形,DJp02表示2号普通独立基础,截面形状为坡形,BJj03表示3号杯形内独立容基础,截面形状为阶梯形,BJp04表示4号杯形独立基础,截面形状为坡形。

扩展资料
结构图内容介绍:
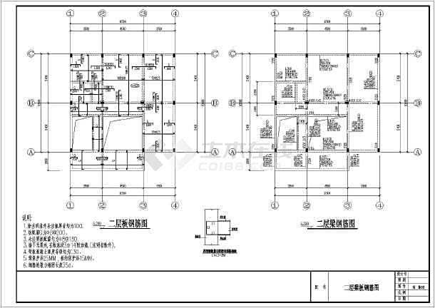
1、绘出定位轴线及梁、柱、承重墙,抗震构造柱等定位尺寸,并注明其编号和楼层标高。
2、注明预制板的跨度方向、板号、数量及板底标高,标出预留洞大小及位置;预制梁、洞口过梁的位置和型号、梁底标高。
3、现浇板应注明板厚、板面标高、配筋,标高或板厚变化处绘局部剖面,有预留孔、埋件、已定设备基础时应示出规格与位置,洞边加强措施,当预留孔、埋件、设备基础复杂时亦可放大另绘。
4、有圈梁时应注明位置、编号、标高,可用小比例绘制单线平面示意图。
5、楼梯间可绘斜线注明编号与所在详图号.
版权声明:
1、本文系转载,版权归原作者所有,旨在传递信息,不代表看本站的观点和立场。
2、本站仅提供信息发布平台,不承担相关法律责任。
3、若侵犯您的版权或隐私,请联系本站管理员删除。
4、文章链接:http://www.1haoku.cn/art_1126915.html
上一篇:如何设置美团支付500元内不要密码
下一篇:黑暗之魂3战士加点攻略
订阅