机电工程-关于穿墙、穿楼板套管的规范要求
来源:网络收集 点击: 时间:2024-04-071、GB50243-2016通风与空调工程施工质量验收规范中:
9.2.2.5 固定在建筑结构上的管道支、吊架,不得影响结构体的安全。管道穿越墙体或楼板处应设钢制套管,管道接口不得置于套管内,钢制套管应与墙体饰面或楼板底部平齐,上部应高出楼层地面20mm~50mm,且不得将套管作为管道支撑。当穿越防火分区时,应采用不燃材料进行防火封堵;保温管道与套管四周的缝隙应使用不燃绝热材料填塞紧密。
2、GB50738-2011通风与空调工程施工规范中:
11.1.2 管道穿过地下室或地下构筑物外墙时,应采取防水措施,并应符合设计要求。对有严格防水要求的建筑物,必须采用柔性防水套管。
11.1.3 管道穿楼板和墙体处应设置套管,并应符合下列规定:
1)、管道应设置在套管中心,套管不应作为管道支撑;管道接口不应设置在套管内,管道与套管之间应用不燃绝热材料填塞密实;
2)、管道的绝热层应连续不间断穿过套管,绝热层与套管之间应采用不燃材料填实,不应有空隙;
3)、设置在墙体内的套管应与墙体两侧饰面相平,设置在楼板内的套管,其顶部应高出装饰地面20mm,设置在卫生间或厨房内的穿楼板套管,其顶部应高出装饰地面50mm,底部应与楼板相平。
3、GB50411-2019建筑节能工程施工质量验收标准中:
10.2.9.8 空调冷热水管穿楼板和穿墙处的绝热层应连续不间断,且绝热层与穿楼板和穿墙处的套管之间应用不燃材料填实,不得有空隙;套管两端应进行密封封堵。
4、GB50242-2002建筑给排水及采暖工程质量验收规范中:
3.3.13 管道穿过墙壁和楼板,应设置金属或塑料套管。安装在楼板内的套管,其顶 部应高出装饰地面 20mm;安装在卫生间及厨房内的套管,其顶部应高出装饰地面50mm,底部应与楼板底面相平;安装在墙壁内的套管其两端与饰面相平。穿过楼板的套管与管道之间缝隙应用阻燃密实材料和防水油膏填实,端面光滑。穿墙套管与管道之间缝隙宜用阻燃密实材料填实,且端面应光滑。管道的接口不得设在套管内。
5、GB50974-2014消防给水及消火栓系统技术规范中:
12.3.19.5 消防给水管穿过墙体或楼板时应加设套管,套管长度不应小于墙体厚度,或应高出楼面或地面 50mm;套管与管道的间隙应采用不燃材料填塞,管道的接口不应位于套管内;
6、GB50261-2017自动喷水灭火系统施工及验收规范中:
5.1.16 管道穿过建筑物的变 形缝时,应采取抗变形措施。穿过墙体或楼板时应加设套管,套管长度不得小于墙体厚度,穿过楼板的套管其顶部应高出装 饰地面20mm;穿过卫生间或厨房楼板的套管,其顶部应高出 装饰地面50mm,且套管底部应与楼板底面相平。套管与管道道的间隙应采用不燃材料填塞密实。
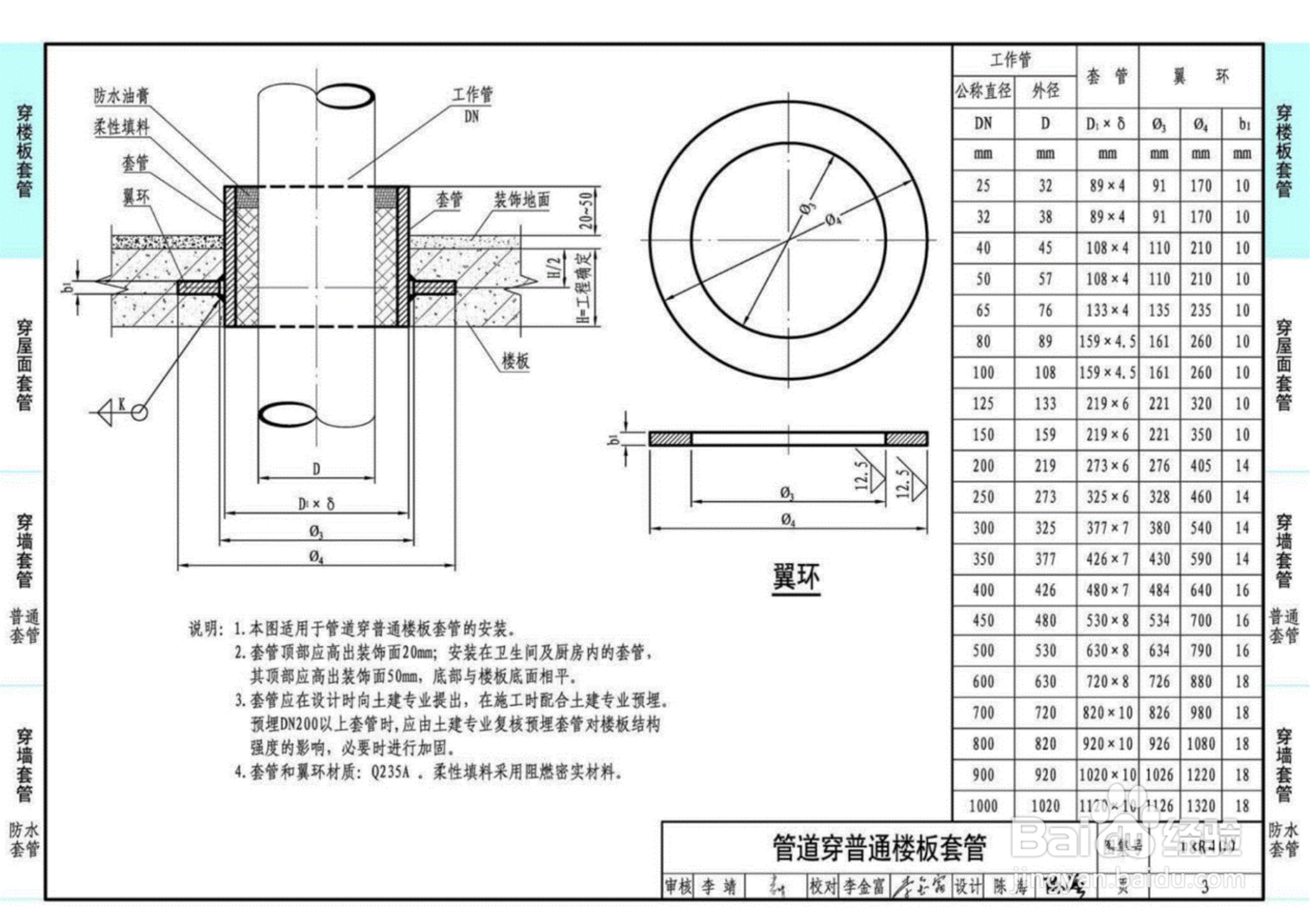
7、18R409_管道穿墙_屋面防水套管图集中:
1)、本图适用于管道穿普通楼板套管的安装;
2)、套管顶部应高出装饰面20mm;安装在卫生间及厨房内的套管其顶部应高出装饰面50mm,底部与楼板底面相平
3)、套管应在设计时向土建专业提出,在施工时配合土建专业预埋预埋DN200以上套管时应由土建专业复核预埋套管对楼板结构强度的影响,必要时进行加固。
4)、套管和翼环材质:Q235A。柔性填料采用阻燃密实材料.
如图,以DN100的管道为例,图集上配备的套管为159mm,为DN100大两号的情况。

版权声明:
1、本文系转载,版权归原作者所有,旨在传递信息,不代表看本站的观点和立场。
2、本站仅提供信息发布平台,不承担相关法律责任。
3、若侵犯您的版权或隐私,请联系本站管理员删除。
4、文章链接:http://www.1haoku.cn/art_455623.html